As metragens mínimas para sala, quarto, cozinha e banheiro
Circulação: especialistas apontam as metragens mínimas para garantir a melhor distribuição e a passagem sem esbarrões
Quem nunca se viu espremido entre a mesa e a cadeira para outra pessoa conseguir passar atrás? Essa é uma das situações mais emblemáticas do mau dimensionamento de ambientes e dos itens que os compõem. Mas pode-se escapar do problema: antes de montar a casa, saque a fita métrica, meça móveis e paredes e se certifique de que restará espaço para transitar.
“É preciso criatividade, pois as moradias estão cada vez menores”, diz a arquiteta Elisa Gontijo. Assim, não há como seguir à risca a ergonomia ideal apontada em livros de arquitetura, e as metragens variam de acordo com as particularidades.
“Porém, existem distâncias mínimas a serem praticadas”, enfatiza o designer de interiores Roberto Negrete. Para que você saiba como pôr em ordem os cantos mais apertados, montamos layouts de quatro cômodos, tomando como base móveis e eletrodomésticos de tamanho padrão e respeitando o mínimo exigido de área livre. Atenção: as ilustrações mostram portas de 80 cm de largura, pois essa medida permite a passagem de cadeirantes. Mas, em imóveis prontos, geralmente as passagens são menores: 70 cm em quartos e 60 cm em banheiros.
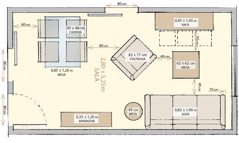
Sala de estar e sala de jantar

Portas
A de entrada no imóvel costuma ser a mais larga, com 80 cm. Neste e nos demais ambientes, é fundamental deixar desimpedido o ângulo da abertura – só dispense essa recomendação no caso de modelos de correr.
Circulação
60 cm bastam para uma pessoa transitar sem aperto, portanto, tente manter essa medida em todas as áreas de passagem. Se receber a visita de um cadeirante, você precisará afastar os móveis.
Jantar
A mesa quase encostada na parede libera mais espaço para a movimentação e possibilita até mesmo que um aparador ocupe a parede em frente, deixando uma largura disponível de 1,35 m. Note que entre um dos pares de cadeiras e a parede atrás dele sobram 60 cm, intervalo que proporciona conforto quando alguém se senta ou se levanta – caso as cadeiras tenham braços, aumente essa distância em 20 cm. Do lado oposto, a outra dupla de assentos está de costas para o acesso aos quartos. Por essa razão, ali deve ser deixado um caminho de 80 cm, a fim de não prejudicar a circulação mesmo quando alguém empurrar a cadeira para trás.
Estar
Para incluir uma mesa de centro em salas estreitas, só abrindo mão do padrão recomendado de 60 cm livres. Entre a mesinha e o sofá, e entre ela e a poltrona, a distância mínima aceitável é de 40 cm – ainda assim, será preciso passar de lado caso alguém esteja sentado. Se o rack tiver gavetas, que se estendem por cerca de 30 cm quando abertas, você necessitará deixar um intervalo maior, de 50 cm, desse móvel até a mesa.
Sofá
Entre o braço do estofado e a parede vizinha devem restar 10 cm, respiro suficiente para abrigar a cortina. A mesinha lateral também fica afastada alguns centímetros.
Cozinha

Circulação
Estabeleça um corredor de 1 m de largura sem barreiras. A distância supera a de outros cômodos para garantir a mobilidade de duas pessoas – enquanto uma usa a bancada, a pia ou o fogão, a outra transita com segurança, já que muitas vezes é necessário carregar louças e pratos quentes.
Portas
Por causa dos eletrodomésticos, as aberturas nesse ambiente costumam medir 80 cm. Nesta planta, a porta de entrada e a da geladeira não podem ser movimentadas ao mesmo tempo. Na prática, isso não costuma ser um problema pois, no dia a dia, é comum que a cozinha permaneça aberta, com a porta encostada na parede lateral. Se preferir, adote um modelo de correr, como foi feito no acesso à lavanderia, junto do fogão.
Eletrodomésticos
Tenha atenção redobrada às posições da geladeira e do fogão. Como esses equipamentos geram calor, que precisa ser dissipado, não podem ficar encostados nas paredes nem nos móveis adjacentes. O manual técnico de cada produto informa os distanciamentos específicos, mas, de modo geral, o vão sugerido por nossos consultores é a partir de 10 cm de cada lado.
Fogão
Quando o forno está aberto, é importante que restem livres 65 cm ou mais para que se consiga agachar, tirar o recipiente do interior e levantar sem o risco de esbarrões.
Quarto

Cama
Nas duas laterais, preserve a passagem mínima de 60 cm. Em uma planta como esta, essa largura possibilita que o morador se sente para calçar os sapatos e ainda admite dois criados-mudos, com folga entre o colchão e a parede.
Guarda-roupa
Mantenha também 60 cm desimpedidos à frente dele. Cada folha de um armário de três portas pede cerca de 45 cm quando aberta, e as gavetas podem chegar a 40 cm. Se optar por um modelo com profundidade maior, ele deve contar com portas de correr.
Banheiro pequeno

Porta
Em geral, mede 60 cm, abertura inviável para quem depende de cadeira de rodas. Com uma planta estreita e alongada – a exemplo desta, usual em apartamentos novos –, o banheiro tem de estar fechado para que se possa abrir a porta do gabinete da pia. O vão de entrada do ambiente determina a profundidade do móvel: já que previmos uma porta acessível, de 80 cm, a bancada fica com no máximo 48 cm.
Vaso sanitário
Os 60 cm entre ele e a parede oposta garantem o acesso ao boxe. Cada lateral da bacia deve distar ao menos 30 cm dos elementos vizinhos, o que dá mais conforto ao usuário e permite apoiar uma lixeira e uma papeleira no piso.
Área de banho
90 cm é a largura mínima para o boxe. Assim, o morador se agacha e se movimenta livremente enquanto se ensaboa, lava o cabelo e se enxuga.
Fontes de consulta: arquitetos Elisa Gontijo e Roberto Negrete, e livro Las Dimensiones Humanas en los Espacios Interiores, de Julius Panero e Martín Zelnik.