Casa geminada ganhou cobertura arborizada após a reforma
Com reforma, sobrado ganha cobertura arborizada.
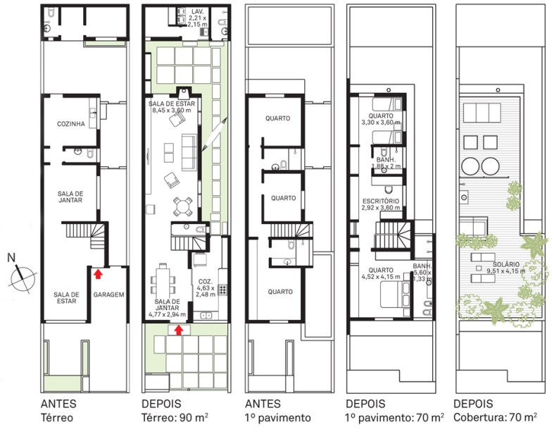
Morar perto do trabalho, numa região cheia de árvores e valorizada pelo mercado imobiliário, era prioridade para o arquiteto paulistano Gil Mello e sua mulher. Por isso, eles decidiram comprar e reformar este sobrado no bairro Alto de Pinheiros, em São Paulo. “Do projeto original, além da implantação, que preservava os recuos exigidos por lei, restaram apenas as lajes, alguns ladrilhos e parte dos tijolos maciços”, diz Gil. Para conquistar luminosidade e aproveitar melhor os 160 m², ele abriu as fachadas com vidro e ergueu a cozinha no lugar da antiga garagem. No térreo, a sala de estar ficou voltada para os fundos do terreno. Dois quartos e um escritório redesenharam o andar superior. “Como muitas paredes foram retiradas, reforçamos as estruturas com vigas metálicas”, explica. Isso estava previsto. Já a substituição do telhado por uma laje plana onde fica um solário foi de última hora. “Achávamos que esse custo não valeria a pena. Hoje, a cobertura é nossa praia particular”, conta.














