Casa com vidro: na copa das árvores e rodeada de Mata Atlântica
A casa de praia em Ubatuba deixa entrever um cenário de tirar o fôlego - árvores e muita beleza nativa do litoral de São Paulo











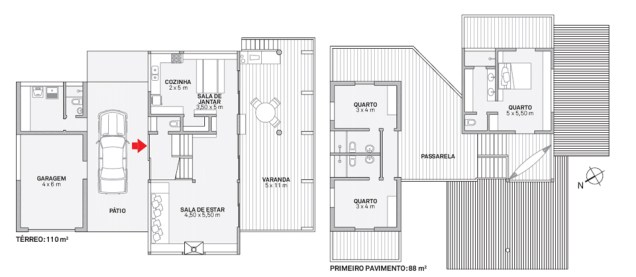
Filtrada pela mata, a luz entra à vontade, pois não há cortinas pelo caminho. Sem elas, o refúgio se conserva integrado à paisagem, que presenteia os moradores com cenários incríveis tanto de dia, sob o sol, quanto à noite, regado pelo luar. “Sempre desejei uma casa inserida por inteiro na natureza. Isso se reflete até nos materiais, sustentáveis e abundantes na região. Tínhamos grande reocupação em ocupar o espaço sem erguer uma estrutura que fosse chocante para o entorno”, detalha Américo Júnior, proprietário e amigo de longa data do arquiteto André Guidotti, autor do projeto. A busca do terreno ideal foi o primeiro desafio. Afinal, perto do mar, as exigências construtivas para garantir o equilíbrio ecológico são numerosas. “Usamos apenas 30% do lote a fim de interferir o mínimo possível na área. A construção se acomoda numa clareira já existente no local, algo que também contribuiu para causarmos o menor impacto”, conta André. Além da estrutura de madeiras de reflorestamento, mais soluções despontam como inteligentes decisões verdes. O conforto térmico da suíte, por exemplo, está assegurado graças a uma medida simples: o duto exaustor do fogão a lenha passa por uma de suas paredes, o que aquece o ambiente em dias frios. Outro recurso útil consiste em aparafusar os fechamentos de vidro do lado de fora das esquadrias – isso protege a madeira e evita a criação de nichos em que insetos indesejados poderiam se instalar. Já as telhas de fibrocimento receberam uma camada de pintura látex na cor palha, saída que ameniza o calor e dificulta a impregnação de sujeira. “Apesar de simples, ou talvez justamente por isso, esta casa foi planejada para ser básica e duradoura, como a boa e velha combinação de tênis, jeans e camiseta. Daqui a 20 anos, quando fizermos uma foto, tenho certeza de que ela continuará atual”, acredita Júnior.