Ambientes pequenos: 38 dicas para aproveitar cada cantinho de casa
Conversamos com seis arquitetos e reunimos 38 dicas que vão te ajudar a aproveitar bem os espaços
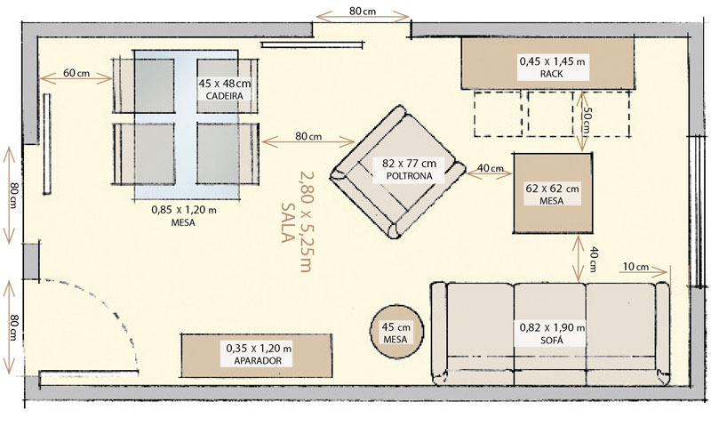
Com a diminuição da metragem das casas e apartamentos, aprender a aproveitar cada cantinho de casa é de extrema necessidade. Escolher os móveis e estofados corretamente e acertar na sua disposição é essencial para não perder nenhum centímetro. Conversamos com seis arquitetos e designers de interiores, de quatro escritórios brasileiros, e reunimos 38 dicas para fazer os espaços pequenos renderem.






































Publicidade
Siga CASA.COM.BR